
【水门桥的钢铁轰鸣犹在耳畔,美国却弄丢了自己的工业脊梁】美国依靠什么打赢了二战?并在二战后称霸世界?在回答这个问题之前,我想先聊一个事情,一个让中国人触及灵魂又扼腕叹息的战役片段;
1950年12月,朝鲜大地风雪漫天,气温已经降至零下,中国人民志愿军九兵团和美军陆战一师的交手即将见分晓。
就在这里,水门桥!
陆战一师撤退的必经之路,如果炸毁这座桥,陆战一师将在冰天雪地里被九兵团彻底包围;
结果大家都知晓了,三次炸毁,三次修复,我们勇士的拼死突击,终究没有扛过美国那恐怖的工业制造速度,这座跨度仅8.8米的桥梁,最终成为工业文明碾压级优势的见证;
1950年12月9日,美国海军陆战队的士兵们正在查看被炸断的水门桥。这里如果不能修复,美军的重型装备都将无法撤离。首次被炸毁后,美军工兵仅仅两天就用钢木结构修复好了桥梁;第二次被炸毁后,美军连夜制造M2车辙桥组件,再次成功架设;第三次桥梁彻底被炸毁后,美军干脆用8架C-119运输机从3000公里外空投8套1.1吨重的桥梁组件,误差不超过50米,第三次成功架设桥梁!
美国空军运送桥梁组件的C-119运输机
1950年12月7日,在朝鲜古土里上空,M2车辙桥段正从第314部队空运联队第61中队的C-119运输机的尾部滑出,精准空投到美军阵地上陆战一师的2000余辆卡车、坦克在零下40℃的寒风中,踩着新架设的钢铁桥梁全身而退。
当英勇无畏的志愿军战士用冻僵的手指捆扎炸药包时,当他们前赴后继用年轻的生命开辟爆破通道时,美国的工业机器正轰鸣着展示其恐怖效能;这场战争为我们敲响了警钟,没有钢铁铸就的工业脊梁,当血肉之躯面对机械齿轮的碾压,将会付出何等的代价!
美军陆战一师的坦克卡车等重型装备成功通过水门桥撤离值得一提的是,除了每小时15米,相当于3000名工兵同时作业的架桥速度外,预制钢梁和当地架设地形的误差不超过5毫米,这样的质量标准,美军可以在24小时完成定制化生产,C-119运输机单次运载量达12吨,远超志愿军全军运输机的总和!
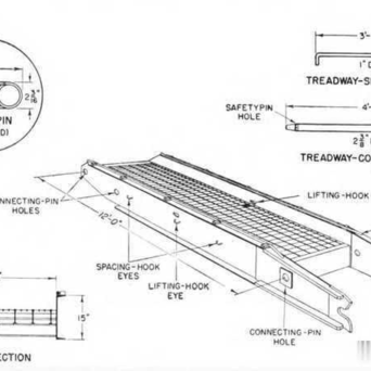
美军钢制车辙桥组件,带有踏板间距钩、踏板连接销以及安全装置冰冷的数据和勇士的热血回答了我们开篇的问题:
是工业!工业制造,令人恐怖的工业化,强于世界的工业化制造能力,造就了当年强大的美国;
但是,时至今日,当我们在一次又一次的血泪教训中,擦干眼泪,收起委屈咬牙推进工业制造业实体化进程时,美国已经逐渐丢掉了这一引以为傲的强国基础。
冷战结束后,美国经济的结构已经逐渐偏离工业化和制造业,反而在金融资本运作的道路上越走越远,毕竟这个来钱快,风险低;
其实纵观美国建国两百多年的历史,他的立国之本也就是“资本为王”,从踏上美洲大陆那一刻起,什么赚钱快他们就搞什么,现在美元的强势霸权在全球范围的收割让资本赚的盆满钵溢,尝到甜头后,就没有人愿意再去沉下身做又苦又累的实体制造业;
美联储数据显示,就是新世纪开始的这二十年时光,美帝制造业占GDP的比重从2000年的15.1%降低至2022年的10.8%,但是同期金融、保险和房地产(FIRE)占比却从19.5%攀升至21.2%;
这种危险的产业结构失衡,实际上正在动摇美国经济的根基,2023年标普500成分股中,金融公司占据了45%的市值,但是仅仅贡献了不足18%的就业;
而美国制造业的就业人数从至1978年的1933万人下降至2022年的1298万人,占全部就业的比重仅为8%,处于历史最低水平;
而这些年美国的量化宽松政策催生的流动性泡沫更让我们看得触目惊心,美联储资产负债表从2008年的9000亿美元恐怖的膨胀至2023年的8.3万亿美元,同期道琼斯指数暴涨380%,形成了危险的偏差。
在七十多年前,美国通用汽车在底特律的工厂平均每一分钟就下线一辆汽车,占据着超过54%的市场份额,各大工厂里雇佣着60多万技术娴熟的产业工人,通用汽车对产品的研发预算甚至超过了NASA航天计划;
通用公司曾经研发制造的月球车这是当年美国制造业的辉煌时代,但进入九十年代后,一切悄然发生着变化,生产汽车的也开始搞起了金融放贷;
2006年,通用汽车下属的金融服务公司(GMAC)利润达到28亿美元,超过汽车制造主业,这种饮鸩止渴的盈利模式导致公司开始放弃了最为根本的制造和研发产业,加大投入到金融领域,2002到2008年间,通用公司将340亿美元用于股票回购而不是技术研发 ,甚至在2008年进一步缩减研发经费和制造成本。
结果,到2009年通用公司举步维艰,市场份额仅剩19.1%,只能破产重组;到2021年时,市场份额占比进一步萎缩至13%,员工从60万减少到15万人;
通用市场占有率严重下滑为了加大资金投入到金融领域,2000年到2020年间,通用公司关闭了在北美的47家工厂,导致上游2000余家零部件供货商企业倒闭,仅俄亥俄州洛兹敦工厂关闭就引发周边社区30%的人口流失;
最致命的是工业人才的断层,截止2024年底,美国汽车工程师平均年龄49岁,35岁以下从业者占比不足19%,而中国新能源汽车研发团队平均年龄31岁…
这座曾象征制造业霸权的工业丰碑,如今深陷转型泥潭,通用公司目前的困境预示着美国工业衰退的前景——这不是个别企业的失败,而是整个工业文明体系的崩塌:
这个曾以制造流水线和先进技术工业征服世界的制造业霸主,正在资本异化的歧途上越走越远。
十倍百倍的金融杠杆终于撬走了一分钟下线一辆的汽车,最终也撬走了成千上万人的衣食口粮;
根据美国钢铁协会的数据,美国粗钢产量从1973年的1.36亿吨峰值跌至2022年的8050万吨,在49年间减少了40.8%;钢铁产量的持续下跌,也反映令出美国令人震惊的产业退化,不到五十年,减产近一半,这还是我们六十年前仰望的那个“超英赶美”的美国吗?
不只是钢铁,作为工业血液的电力生产更显疲态,EIA统计显示美国发电量年均增长率从1950-2000年的4.7%骤降至2000-2022年的0.3%;实际上在2022年时,美国的总发电量只有4.18万亿千瓦,已被中国(8.85万亿千瓦时)远远甩开;
除了工业制造需要的钢铁、电力等必要基础,从美国交通基础设施的逐年衰败也可以折射出制造业的凋零 ;2023年,美国交通部报告显示,全美45%的公路桥梁存在结构性缺陷,铁路货运量自2006年以来下降18.7%,洛杉矶港集装箱处理效率仅为上海港的1/3。
更致命的是半导体产业空心化,美国在全球芯片制造产能中的份额从1990年的37%暴跌至2023年的12%,直接导致2021年汽车产业因缺芯损失2100亿美元。
时光轮转,不过五十年,美国就逐步丢掉了制霸全球的利器;二战时半小时一辆坦克出厂的神话只是回忆里遥远的故事,国际货币基金组织预测到2028年美国经济年均增速将降至1.6%,不到新兴经济体均值的一半,当中国正以31%的制造业占比打造我们的产业长城时,美国却在虚拟经济的迷宫中逐渐迷失;
曾经二战时美国费舍曼坦克工厂的生产流水线,这里,半个小时可以组装一辆坦克下线这就是我们可见美国的未来,金融盛宴掩盖下锈迹斑斑的利器正在褪去当年大杀四方的光芒,而持剑的人却浑然不知,在美酒与金钱中鼾声渐起…










创同配资提示:文章来自网络,不代表本站观点。